DATASHEET

MACHINE DETAILS

Stock No.
1022-H09062
Machinetype
Machining Center - Universal
Make
MAZAK
Type
VARIAXIS i-800
Year of construction
10-2020
Control
CNC
Location
Germany
Country of origin
Japan
Delivery time
Immediately
Quotation
Ex Works
Price

TECHNICAL DETAILS



x-travel
730 mm
y-travel
800 mm
z-travel
560 mm
Control
Smooth X-Steuerung
total power requirement
kW
weight of the machine ca.
t
dimensions of the machine ca.
m


DESCRIPTION

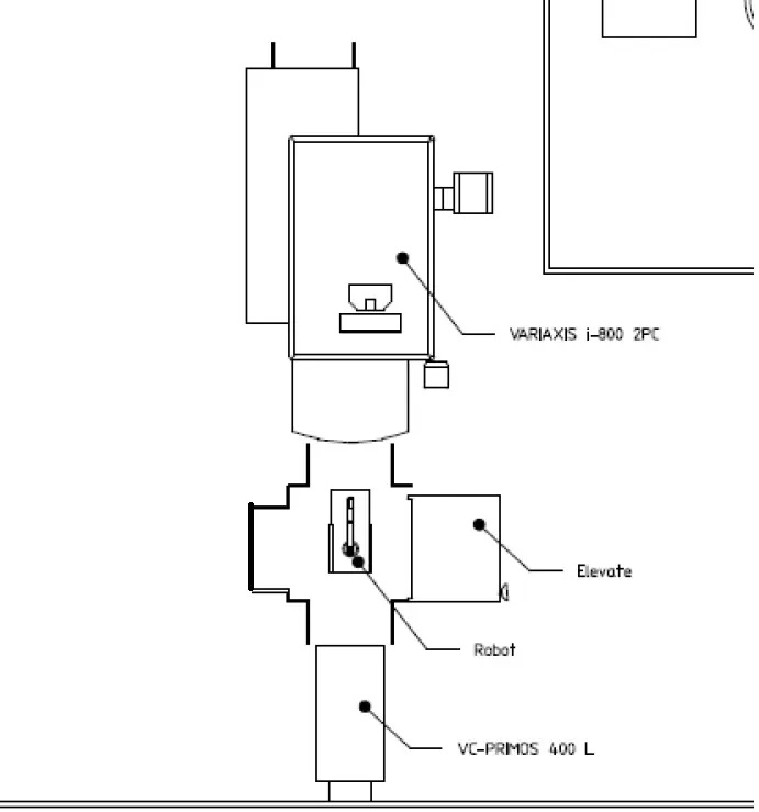
For sale is a production cell consisting of:

1 x MAZAK VARIAXIS i-800
1 x MAZAK VC PRIMOS 400 L
1 x CELLRO ELEVATE with FANUC

MAZAK VARIAXIS i-800
5-axis machining center
Year of manufacture
October 2020
Commissioned in 2021

Smooth X control
Pallet changer, 2 pallets
5-axis simultaneous machining
Travels:
X-axis: 730 mm
Y-axis: 800 mm
Z-axis: 560 mm
A-axis: -120° to +30°
C-axis: ±360°
Rapid traverse (X/Y/Z): 42 m/min
Rapid traverse (A/C): 50 rpm
Max. spindle speed: 10,000 rpm
SK-50 spindle taper, DIN 69871

-Tool magazine for 120 tools

-Preparation for hydraulic clamping including pallet clamping function

-Automatic pallet changer

-Electronic handwheel
-Panel for Euchner Tool ID
-Air flow through rotating spindle
-Coolant gun
-Knoll coolant system KF400/2300
-Paper band filter
-Preparation for 70 bar
-High-pressure pump 70 bar
-Knoll chip conveyor
-Renishaw NC4 laser
-Air blow-off at the NC4 laser
-Mazak Monitoring B, including Renishaw RMP600 probe
-Tool breakage monitoring (TBR) & Mazak Monitoring System (MMS) EIA/ISO program – macro
-Automatic workpiece coolant flushing at the pallet changer
-Workpiece zero point offset under EIA/ISO

-Mazak API
-Smoothly synchronized Thread cutting

- Drilling cycle with torque-dependent chip breaking
- Engraving function
Maximum program size: 8 MB
- Rapid traverse with constant tilt angle
- Robot interface (Advance/Profibus)

MAZAK VC PRIMOS 400 L
Vertical machining center
Year of manufacture 2020, installed 2021

Mazatrol Smooth C
Travels
X: 500 mm
Y: 400 mm
Z: 350 mm
Table size: 600 x 400 mm
Max. table load: 300 kg
Milling spindle AC 11 kW
Max. spindle speed: 12,000 rpm
14 tools, BT30
- 2 hydraulic connections
- Automatic door
- Oil mist lubrication
- Signal light
- Airflow through rotating spindle
-Mazak Monitoring B, incl. Renishaw OMP40 touch probe

- Synchronized thread cutting
- Drilling cycle with torque-dependent chip breaking
- Rapid traverse with constant tilt angle
- Robot interface (Advance/Profibus)
- Profibus DP

CELLRO ELEVATE E-110-165
Robot cell with parts storage
Elevate W 2000 mm – H 4000 mm
Fanuc robot R-2000 165F iC
Fanuc robot max. payload: 165 kg
max. handling weight: 90 kg
Automatic gripper change system
Manual gripping force control
I/O module gripper magazine
Internal valve manifold
Modem for remote maintenance
Safety fence with gate and request button
PREMIUM controls
High-quality dialog control via touchscreen
Including robot software options:
High-sensitivity collision detection
Auto singularity avoidance
Soft float
DCS position Speed ??Check Function
Workpiece Rotary Station
Workpiece Measuring Station with SPC Trays for measuring parts during the process
Air Blow-Out Station
Various Trays 1600 x 550 mm
Loading with extendable tray. Interface for 2 Variaxis i-800s and one VCP400L
For sale is a complete production cell with the capability of 6-sided machining. The production cell consists of a 5-axis Mazak Variaxis i800 machining center, a Mazak VCP400L vertical machining center integrated into a system with a CELLRO robot cell including part storage, robot, measuring station, turning station, and blow-out system.




Changes and errors in the technical details and information reserved.

Documents & videos

#1022-H09062 - Machining Center - Universal MAZAK VARIAXIS i-800


Privacy policy
An der Spielbank 4
40789 Monheim am Rhein
Germany
+49 (0) 2173-39494-0
+49 (0) 2173-39494-29
maschinen@knops.de
www.knops.de

© 2026 Knops Werkzeugmaschinen GmbH & Co. KG,
All rights reserved